Casa singola
Caserta


€ 1.100.000,00

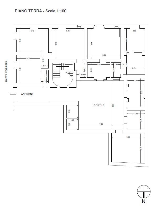
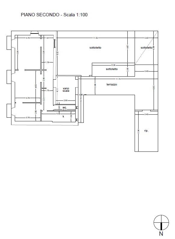
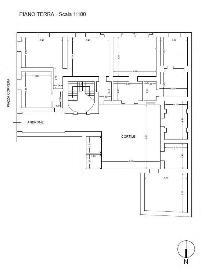
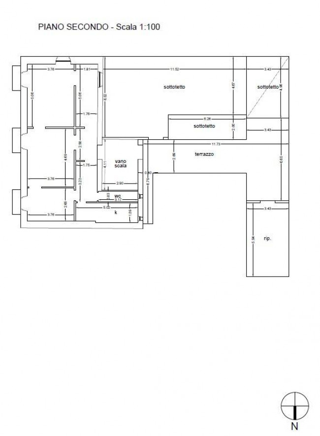
A 500 M DALLA REGGIA DI CASERTA, in una delle piazze storiche della città recentemente oggetto di riqualificazione urbana, proponiamo un PALAZZO INDIPENDENTE, AD ANGOLO E CON DOPPIO ACCESSO. L'immobile si compone di un piano terra con elegante androne di accesso e corte interna privata, su cui affacciano tutti gli ambienti dello stabile, composto da nove vani che si sviluppano intorno a un elegante scala in stile, di cui cinque risultano prospicienti la piazza e il Vicolo della Ratta, assumendo valore di potenziali VANI COMMERCIALI. Al piano primo i volumi si arricchiscono di balconi con affaccio lungo la piazza e lungo la strada nonchè sulla corte interna. Il piano secondo si addiziona di un ampio e COMODO TERRAZZO A LIVELLO, fino ad arrivare al piano ultimo composto a un unico grande spazio con ulteriore TERRAZZINO. La PIANTA REGOLARE del manufatto e le altezze importanti dei volumi lo rendono ideale per una ristrutturazione volta a diventare un ELEGANTE DIMORA PRIVATA, dotata di ogni comfort, è tuttavia possibile la SUDDIVISIONE IN PIU' UNITA' ABITATIVE, tutte di sufficiente capienza. L'immobile dispone di un'importante superficie residenziale che lo connota tra i palazzi più ampi di Caserta, rendendolo unico nel suo genere. La posizione è centralissima, comoda per vivere la vita città e la sua Reggia, ma anche direttamente collegata alla parallela Via Roma, dalla quale si esce dal centro urbano raggiungendo i vicini svincoli autostradali, la stazione ferroviaria e la piattaforma bus regionale e nazionale. L'immobile è da considerarsi da ristrutturare. Visionabile tutti i giorni previo avviso telefonico.

  • Totale mq: 875
  • Camere: 10
  • Bagni: 4
  • Locali: 25
  • Stato conservazione: Da ristrutturare
  • Classe energetica: Non specificato
  • Stato attuale: Libero al rogito